530-0041 大阪市北区天神橋2丁目5-28
千代田第二ビル 4階C号室
Tel 06-4801-9956
Fax 06-4801-9957

530-0041 大阪市北区天神橋2丁目5-28
千代田第二ビル 4階C号室
Tel 06-4801-9956
Fax 06-4801-9957
© Neutral Architect Office. All rights reserved.
病院の受付カウンターの改修計画です。
・車椅子のまま受付ができるコーナーを設けたい
・コスト抑えて明るく刷新したい 、とのご要望でした。
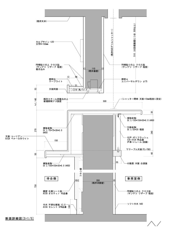
車椅子用のスペースはカウンターを下げる必要があり、そうするとセキュリティー用のシャッターが使えなくなるので交換する必要があるのでは?と悩んでおられました。シャッターをやり替えるとなるとココに多額のコストを掛けることになってしまいます。
現状シャッターには特に不具合もないので、これを活かした計画案を考えてみました。


まずは徹底的に調査採寸して現状の図面をおこします。

そして計画案。現状下地を利用し人造大理石や不燃材料で意匠を整えて、サインや照明を変更して明るい印象となるように計画ました。車椅子カウンターと同じ高さで、荷物置き台となるように天板を通しています。

事務室側。下げた天板とシャッターにできる隙間は「引戸でガラッと簡単に閉じれるようにする」というのが今回の提案の肝になります。これで日々の運用も閉まったときの見た目も問題なく現状のシャッターが使えます。

車いすのスペースは使いやすい幅と高さを念入りにヒアリングして寸法を決めます。

計画案の絵を1枚描くためには「どうやって造るかなぁ?」と、少なくとも頭の中でこれぐらいのことをグルグル考えます。(下地をココまで使い、どうやって補強して、引戸をどうやって滑らせる、など)
価格を知る、見積をする場合はこれらの情報を落とし込んだ詳細図が必要なのです。
「だいたいイクラぐらいですかね?」と聞かれてサッとご案内できれば良いのですが、なかなか即答できないのはこれが理由です。
